Features
Retail Show Room
Offices
Storage
Services Provided
Architectural Design Services
PROJECT INFORMATION
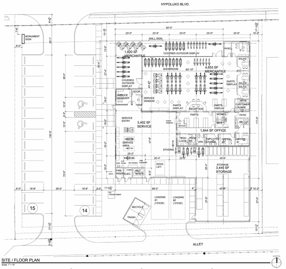
This project features the design and development of a dedicated motorcycle dealership for Kawasaki brand products. The facility blends retail, office, and storage space into a single, well-organized layout that supports both sales and operations. The front portion of the building serves as the primary retail and administrative hub, offering customers an engaging showroom experience along with dedicated office space for dealership staff.
SEAMLESS CONNECTION BETWEEN RETAIL, OFFICE, AND SERVICE AREAS

Behind the retail area, a spacious rear section accommodates inventory storage and service operations, ensuring efficient flow and separation of public and back-of-house functions. The layout supports high visibility for products and brand identity, while providing the infrastructure necessary for streamlined dealership management.







