Features
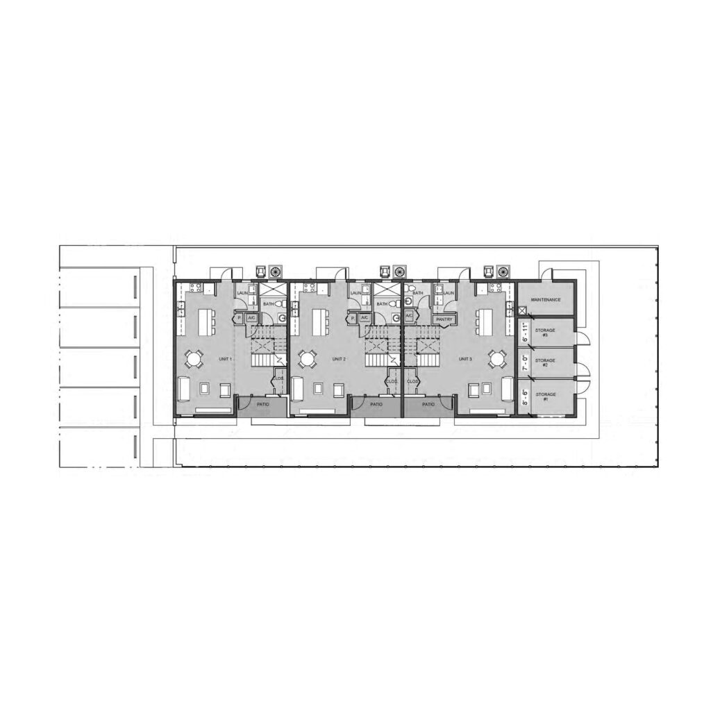
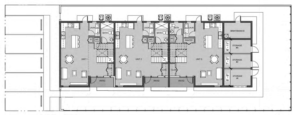
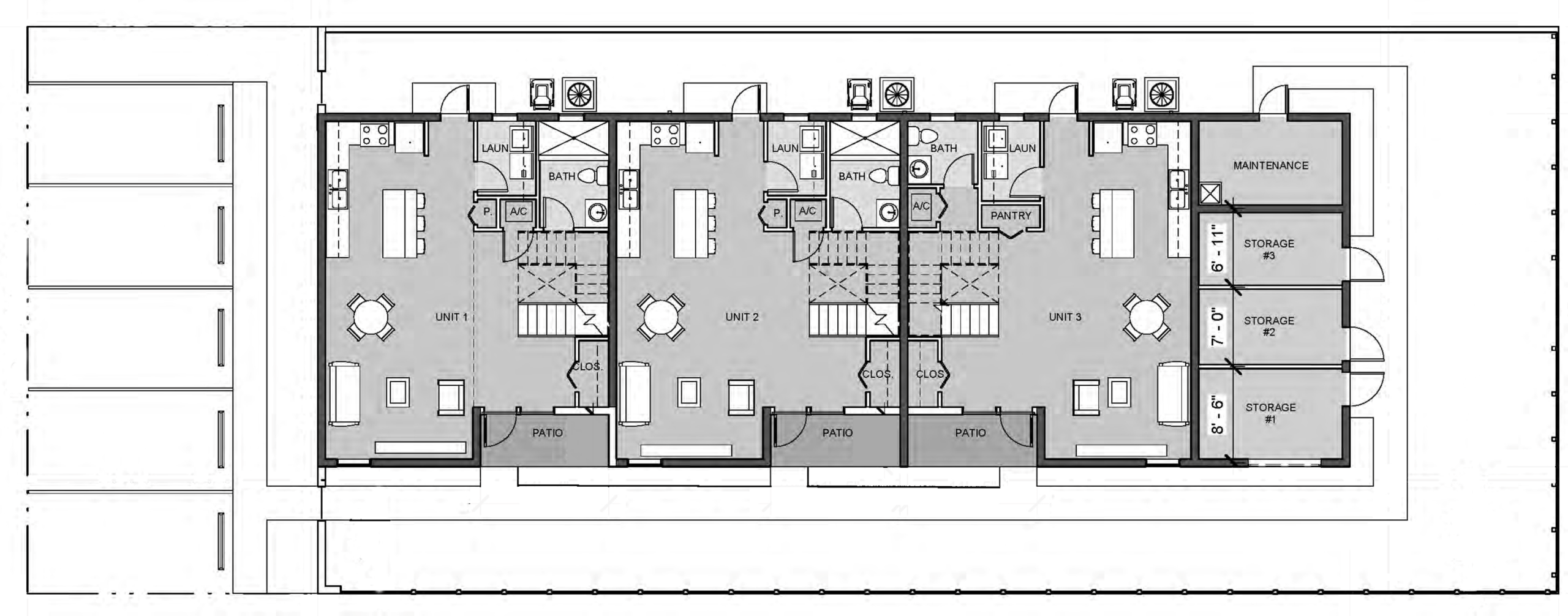
Townhouses Units
Roof Decks
Sustainable Design
Services Provided
Architectural Design Services
PROJECT INFORMATION
This project involved the renovation and vertical expansion of an existing one-story multifamily complex in Deerfield Beach, Florida. The objective was to transform the aging structure into a contemporary, sustainable series of multi-level townhouse units, each featuring private rooftop decks.
ADAPTIVE REUSE WITH MODERN COASTAL VISION

A key challenge was working within the constraints of the original building footprint on a narrow site, while remaining compliant with current zoning and building codes. The design team prioritized daylighting and coastal views, introducing large openings to bring natural light deep into the living areas and frame vistas of the nearby Atlantic Ocean.
The resulting design merges modern form with efficient spatial planning, giving new life to the existing structure while offering a desirable, light-filled coastal lifestyle just steps from the water.












