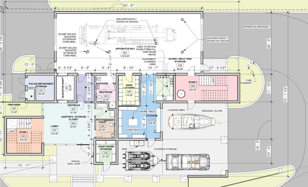
Features
3-story structure (+/- 14,929 SF)
Covered boat storage
Exterior gated storage
Gated parking
Staging area
Services Provided
Architectural Services
Conceptual Design
Construction Estimating
PROJECT INFORMATION
This project involves the demolition of the existing marine facility at Oyer Park and the design of a new three-story, approximately 14,803-square-foot Fire Station and Marine Response Facility for the City of Boynton Beach. The new facility is designed to enhance emergency response capabilities while addressing the site’s floodplain conditions by locating all habitable spaces and essential mechanical systems above the FEMA base flood elevation. The ground floor is dedicated primarily to apparatus bays and equipment storage, while the upper levels provide operational, administrative, and living spaces to support fire rescue and marine response personnel.
RESILIENT DESIGN FOR COASTAL EMERGENCY RESPONSE

The architectural design reflects a tropical Key West aesthetic, incorporating sloped metal roofs, decorative brackets, and horizontal siding that complement South Florida’s coastal character. By pairing resilient design strategies with a context-sensitive architectural expression, the project creates a functional and durable public safety facility that supports critical emergency operations while responding to the unique environmental conditions of its waterfront setting.












