Features
Modern Architecture to meet Splash Pad Pirate Theme
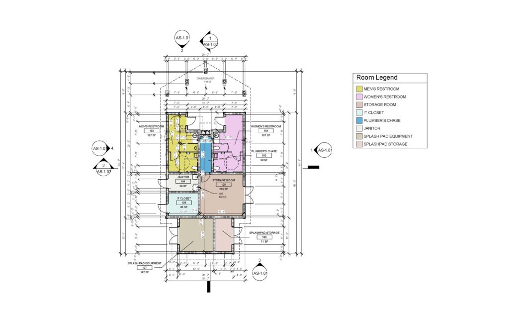
1,576 SF Building
Covered Entry
Services Provided
Conceptual Design
Architecture
PROJECT INFORMATION
Waters Edge Park’s conceptual addition is a 1,576-square-foot building thoughtfully designed to support the park’s popular splash pad while enhancing the overall visitor experience. With design cues inspired by the park’s playful pirate theme, the building creates a welcoming presence through its covered entry and contemporary architecture.
A PIRATE-INSPIRED ADDITION FOR PLAY AND COMFORT

Inside, the layout includes public restrooms, a plumbing chase, a janitor’s closet, an IT room, and dedicated areas for splash pad equipment and storage. Each space was carefully planned to meet the operational needs of the park, seamlessly integrating with the themed setting while elevating the comfort and convenience for guests.


















