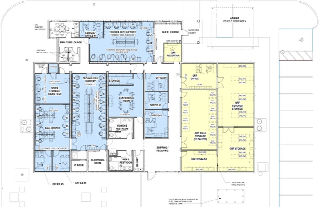
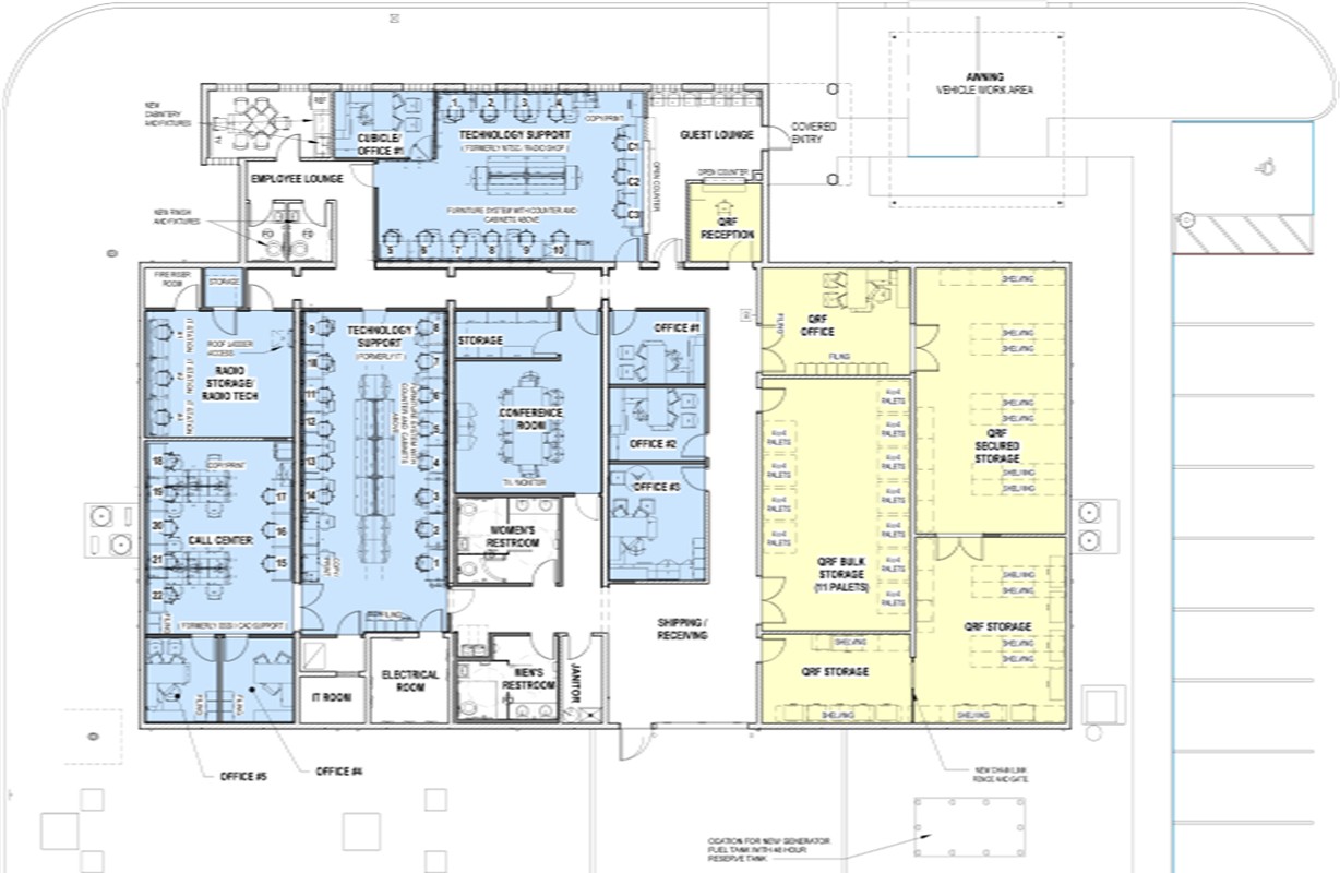
Features
Size: +/- 8,816 SF
Technology Support
Radio Tech and Storage
Call Center
Offices
IT Room
Employee Lounge
Conference Room
QRF Secure Storage
Diesel Generator
Full Sprinkler System
Vehicle Drop-Off Covered Area
Services Provided
Design
Architecture
Construction Administration
PROJECT INFORMATION
The Broward Sheriff’s Office Technical Service Center South underwent a thoughtful interior and exterior transformation. The renovation focused on modernizing approximately 8,816 square feet within Building #3, converting the existing central supply customer service area into a more efficient and purpose-driven support hub.
UPGRADES THAT ENHANCE LOGISTICS, WORKFLOW, AND SERVICE DELIVERY

The updated interior now features dedicated office and tech support spaces, as well as organized storage areas designed to streamline operations and improve staff workflow. In tandem with the interior improvements, a 460 square foot covered awning was added to the vehicle service area, enhancing protection from the elements and enabling smoother logistics in day-to-day operations.
This project not only improves the building’s operational capacity but also reinforces the Sheriff’s Office commitment to maintaining high-performing facilities that support critical public safety services.















